Zum Inhaltsbereich springen

Einfeldsporthalle Dresden

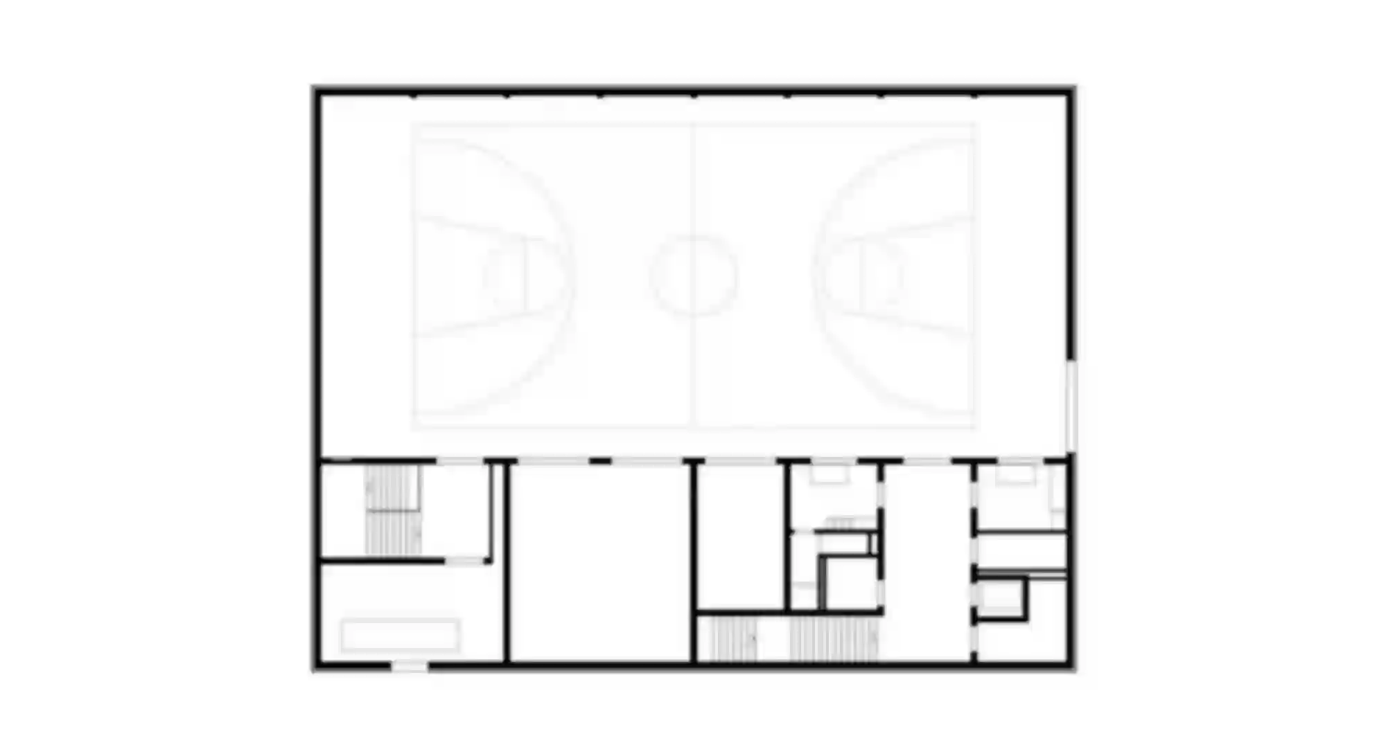
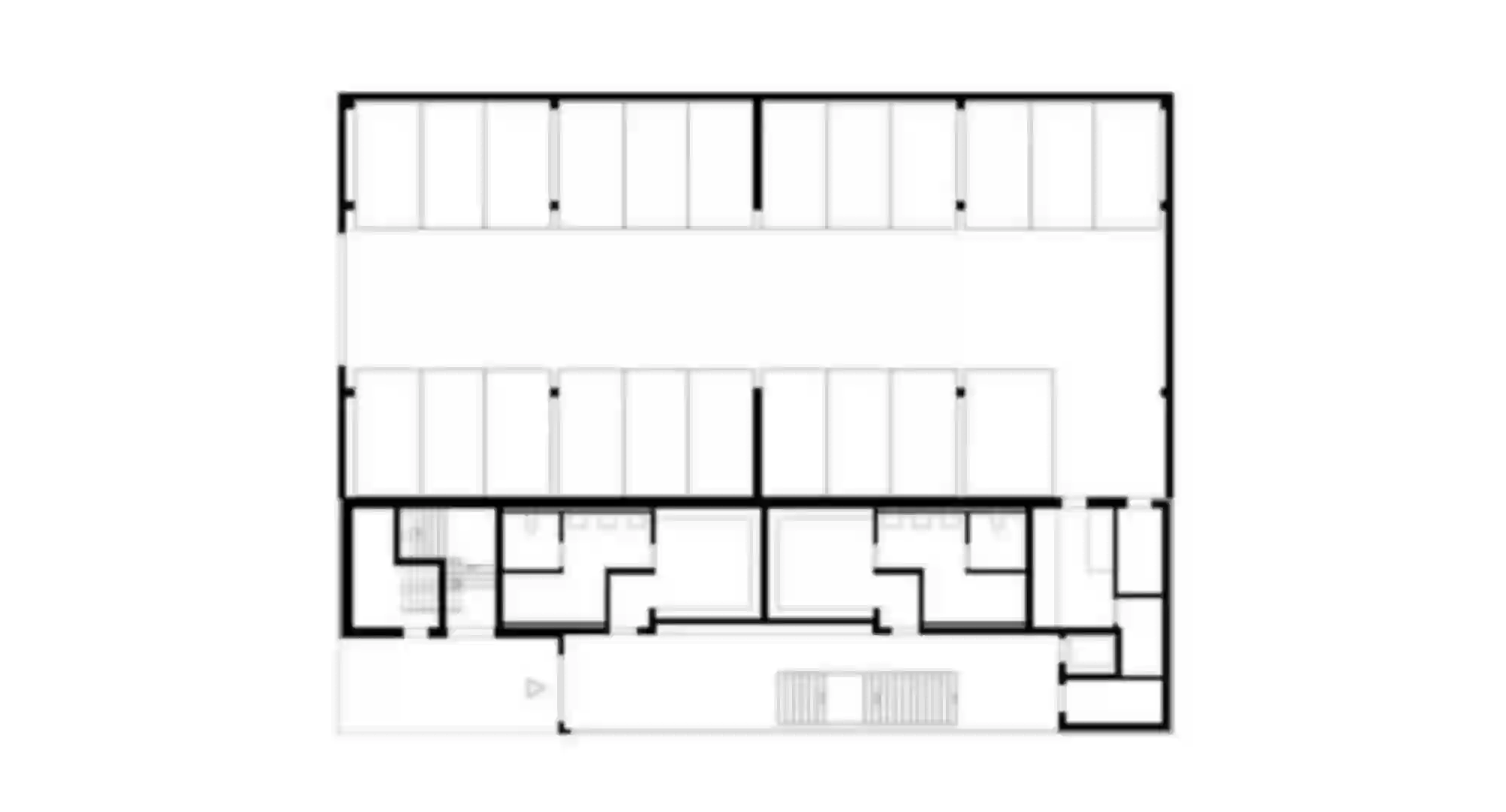
Das Berufsschulzentrum des Gastgewerbes liegt im ehemals stark zerbombten Altstadtring Dresdens. Während der Hauptbau bereits in den neunziger Jahren wieder komplettiert werden konnte, war die ehemalige Sporthalle nur noch in Form eines Aussensportfeldes präsent. Mit dem Neubau der Halle wird die offene Ecke des Grundstücks nun wieder baulich gefasst. Die Halle wird als zweigeschossiges Gebäude ausgeführt. Durch die Anordnung des Sportraumes oberhalb einer erdgeschossigen Garage gewinnt der Baukörper entlang der Ehrlichstrasse an Höhe und damit auch die notwendige Präsenz, um die städtebauliche Ecksituation adäquat zu füllen. Nach aussen zeigt sich der Neubau in Anlehnung an das nahegelegene Kraftwerk Mitte mit einer Ziegelfassade, die im Sockel im Bereich der Parkierung perforiert ist. Im Inneren bestimmen robuste und einfache Materialien wie Holz und Beton das Erscheinungsbild.

Ort

Dresden

Jahr

2018 – 21

Stand

VGV-Verfahren, in Realisierung

Projekt

Neubau einer Einfeldsporthalle mit Garage

Auslober

Landeshauptstadt Dresden

Verfasser

Translocal Architecture Gmbh

Nächstes Projekt: Altersheim Home de la Jogne, Charmey | CH