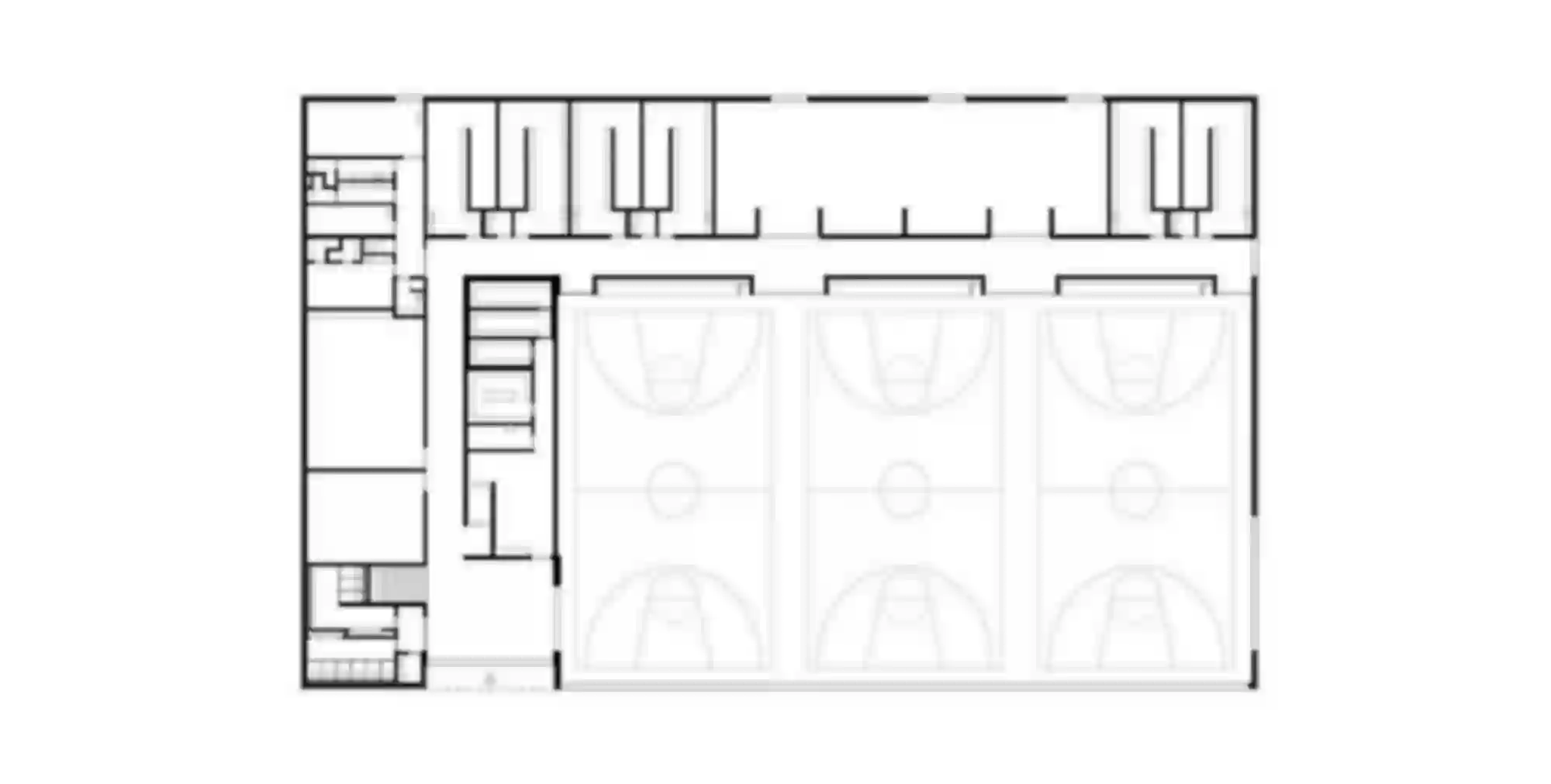
Der Ortsrand von Châtel-St-Denis verläuft sanft in die Landschaft, die geprägt ist von einzelnen Gehöften und weiträumigen Feldern und Wiesen. Hier befindet sich auch das Grundstück für den Neubau einer Dreifeldsporthalle, die für die umliegenden Gemeinden einen gemeinsamer Sport- und Veranstaltungsraum darstellt. Ausgehend von der baukörperlichen Einbettung des Neubaus in die hügelige Voralpenlandschaft erfolgte die Umsetzung der Halle als ortstypischer Holzbau. Sowohl in der Konstruktion als auch in den Oberflächen bestimmt das Material Holz die Erscheinung. Dabei gewinnt die Fassade durch die handwerkliche Bearbeitung der Aussenhaut eine indivduelle Präsenz, die sowohl vertraut im Material als auch überraschend im Detail ist und dem Neubau eine zurückhaltende Eigenständigkeit verleiht.
Châtel-Saint-Denis
2006 – 09
1. Preis + Realisierung
3-Feld-Sporthalle
Association des communes de la Veveyse pour le CO,
Commune de Châtel St-Denis
Translocal Architecture GmbH 
mit S. Virdis
Thomas Jantscher
 
                
