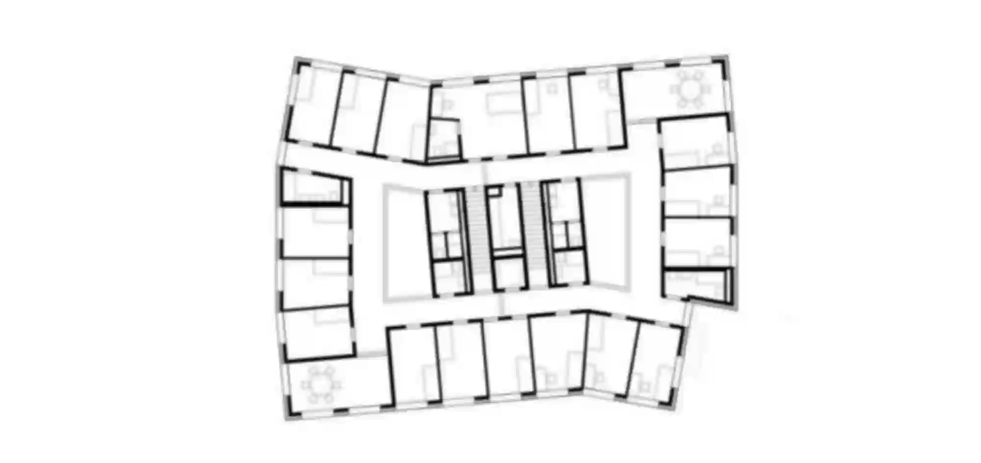
Das Foyer Petitmaître bietet Kindern aus benachteiligten Verhältnissen eine Chance auf eine gute Entwicklung ihrer Persönlichkeit. Zwei geschossübergreifende Hallen bilden das jeweilige Herzstück zweier Wohngruppen. Während das Erdgeschoss die gemeinschaftlichen Nutzungen beherbergt, dient das Obergeschoss mit den privaten Zimmern und dem Studierzimmer als Rückzugs- und Ruhebereich der Kinder. Mittels einer zurückhaltenden Gestaltung und Materialisierung entsprechend der Nachbarbauten fügt sich der Bau mit seiner silbern schimmernden Putzfassade behutsam in das umliegende Wohnquartier ein.
Yverdon-Les-Bains
2011 – 15
1. Preis + Realisierung
Wohnheim für Jugendliche
Fondation Petitmaître
Translocal Architecture GmbH
Jakob Severin, Rainer Taepper
 
                
 
                
