News
Liste
Galerie
Kontakt
Geschäftsleitung
Team
Offene Stellen
Publikationen
Preise & Auszeichnungen
Jury
Impressum & Datenschutz
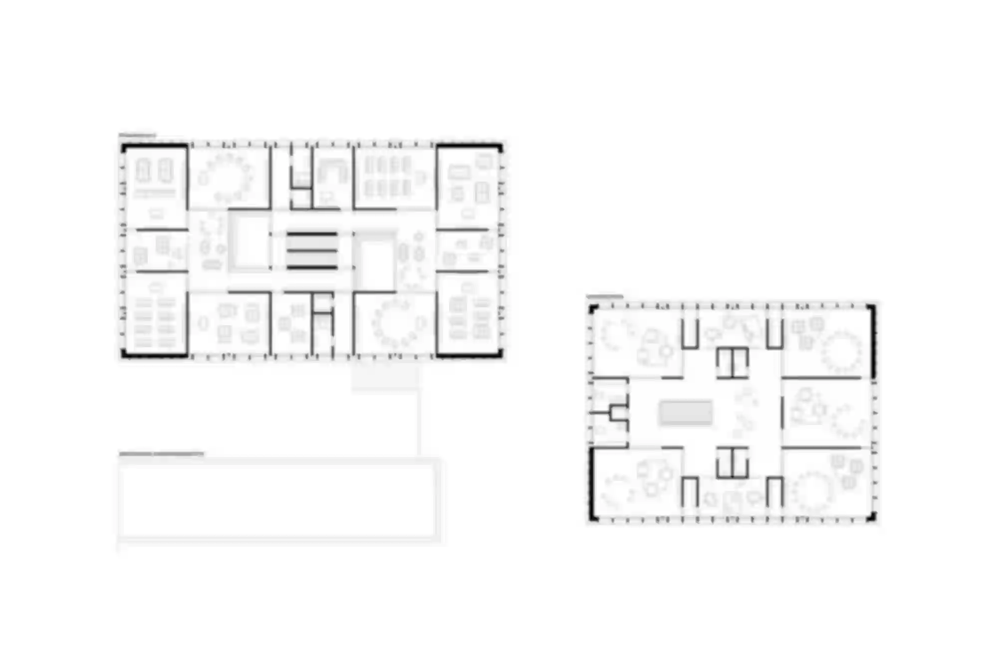
Brig-Glis
2024
2. Preis
Neubau Grundschule und Sporthalle
Stadtgemeinde Brig-Glis
Translocal Architecture GmbH