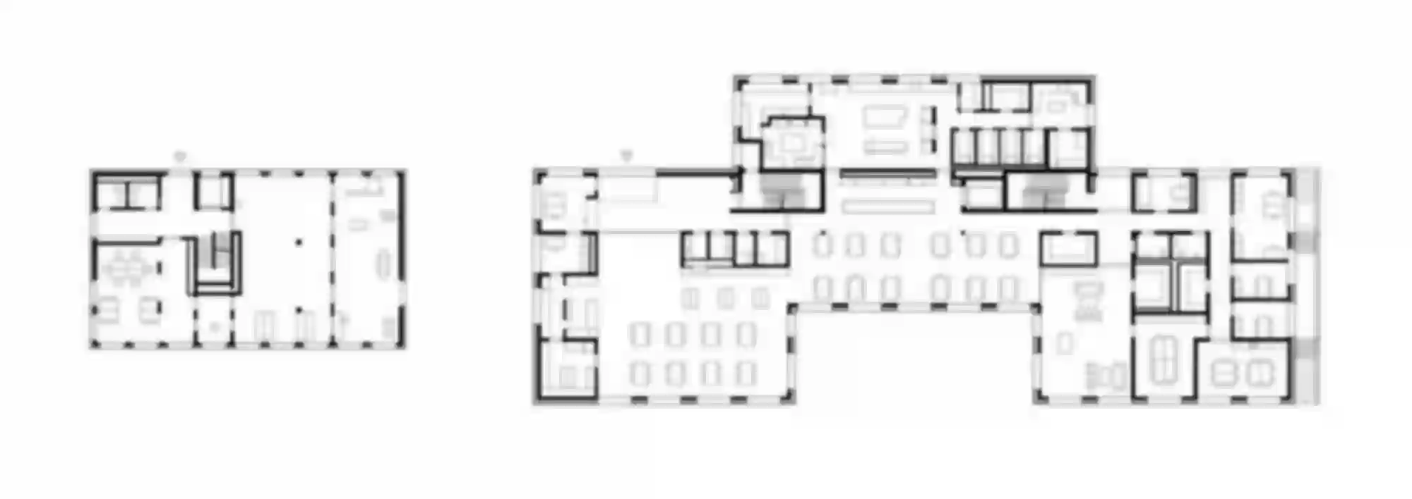
Die Stiftung Alpenruhe ist eine Einrichtung zur Betreuung und Förderung Erwachsener mit verschiedenen Behinderungen. Sie ist darüber hinaus seit langem ein beliebtes Freizeit- und Wochenendziel für Familien und Besucher der Region. Mit der Neuorganisation des Areals wird der Begegnung und Kontakt mit Besuchern mehr Raum gewährt und andererseits sichergestellt, dass die Bewohnerinnen und Bewohner ausreichend Privatsphäre sowie Rückzugsmöglichkeiten haben. Der Neubau organisiert Wohnheim und Café in einem dreifach gegliederten Volumen, dessen Architektur an die Bautradition des Saanenlandes anknüpft und dieses zeitgenössisch interpretiert. Vor- und Rücksprünge gliedern Eingang und Anlieferung und generieren an der Südseite des Gebäudes eine geschützte Terrasse. Das Erdgeschoss dient den gemeinschaftlichen Aktivitäten und der Begegnung, während in den Obergeschossen individuelle Wohngruppen entstehen. Putz, Holz und steinerne Oberflächen schaffen dabei ein natürliches und lebenswertes Wohnumfeld.
Saanen
2011 – 23
1. Preis + Realisierung (1.BA)
Neubau Wohnheim 
und Sanierung Werkstätten
Stiftung Alpenruhe
Translocal Architecture GmbH
Rainer Taepper
 
                
